Guide Price £210,000 - Available


  • A SEMI DETACHED HOUSE WITH NO ONWARD CHAIN
  • 2 DOUBLE BEDROOMS
  • SITTING/DINING ROOM
  • KITCHEN
  • FAMILY BATHROOM
  • ENCLOSED GARDEN
  • GAS CENTRAL HEATING
  • DOUBLE GLAZING
  • VERY GOOD DECORATIVE ORDER THROUGHOUT
  • A GREAT FIRST BUY OR INVESTMENT

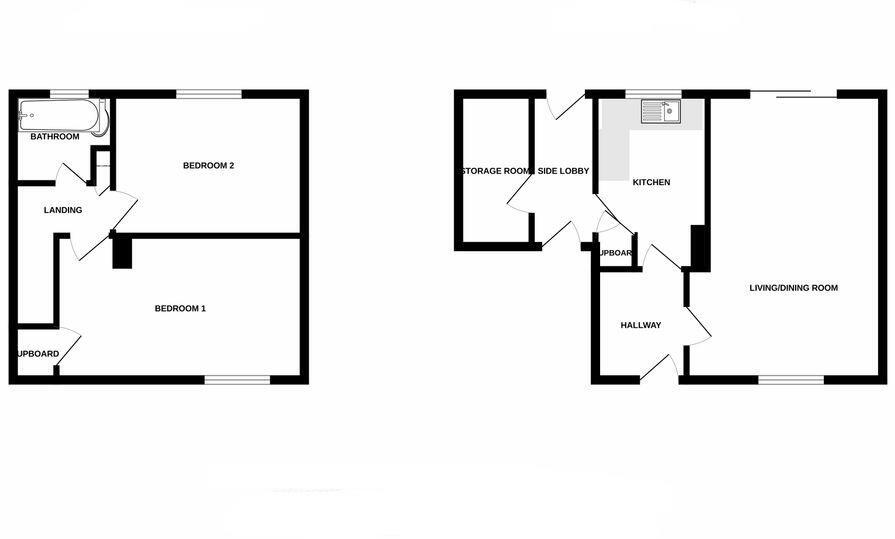
Accommodation
Front door opening to:-

Entrance Hall
With stairs to the first floor accommodation, ceiling light and door to:-

Sitting/Dining Room
c.18'4 x 12'8 > 11'2 (5.88m x 3.86m > 3.40m)
With a double glazed window to the front aspect, double glazed patio doors to the rear garden, laminar floor, 2 radiators, ceiling light.

Kitchen
c.11' x 7'4 (3.35m x 2.23m)
With a double glazed window to the rear aspect, fitted units comprising floor standing storage cupboards and drawers, with working surfaces incorporating a single bowl single drainer stainless steel sink unit with mixer tap, space and point for electric cooker, space and plumbing for both washing machine and dishwasher, radiator, ceiling light, door to:-

Side Lobby
With doors to both front and rear aspects and door to a storage room.

Landing
With ceiling light, doors to:-

Bedroom 1
c.15'11 x 9'1 (4.85m x 2.76m)
With a double glazed window to the front elevation, radiator, ceiling light.

Bedroom 2
c.12' x 8'11 (3.65m x 2.71m)
With a double glazed window to the rear elevation, radiator, ceiling light.



Family Bathroom
With a double glazed window to the rear elevation, a suite comprising of a bath with mixer tap and shower handset, pedestal wash hand basin, low-level WC, tiling to splash prone areas, radiator, ceiling light.

Outside
To the front of the property there is an enclosed garden laid to lawn with pathway to the front door, the rear garden is fully enclosed and offers a generously proportioned lawn and gravel seating area.

Construction :- :- Concrete with brick elevation under a tiled roof

Council Tax band :- B

Primary School Catchment :- Lyngford Park Primary

Secondary School Catchment :- Taunton Academy



Directions
Head out of Taunton along Priorswood Road, at the roundabout turn left into Eastwick Road, Buckland Road will be found on the right hand side.

Notice
Please note we have not tested any apparatus, fixtures, fittings, or services. Interested parties must undertake their own investigation into the working order of these items. All measurements are approximate and photographs provided for guidance only.

Floor Plan
EER Chart

The Energy-Efficiency Rating is a measure of a home's overall efficiency. The higher the rating, the more energy-efficient the home is, and the lower the fuel bills are likely to be.

Utility Supply Type
Electric Mains Supply
Gas None
Water Mains Supply
Sewerage None
Broadband None
Telephone None

Other Items Description
Heating Not Specified
Garden/Outside Space Yes
Parking No
Garage No

Broadband Coverage Highest Available Download Speed Highest Available Upload Speed
Standard 6 Mbps 0.7 Mbps
Superfast 80 Mbps 20 Mbps
Ultrafast 1800 Mbps 1000 Mbps

Mobile Coverage Indoor Voice Indoor Data Outdoor Voice Outdoor Data
EE Enhanced Enhanced Enhanced Enhanced
Three Likely Likely Enhanced Enhanced
O2 Enhanced Likely Enhanced Enhanced
Vodafone Likely Likely Enhanced Enhanced

Broadband and Mobile coverage information supplied by Ofcom.


marker icon